Horizon Living

Floor Plans

Independence Living

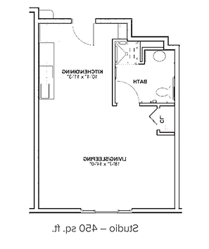
Floor Plan 1

1 Bed, 1 Bathroom

A single room designed with the resident's independence in mind. Living room and kitichen are integrated for convenience and ease of use.

450 sq. ft.

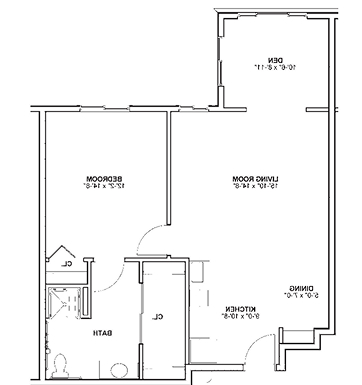
Floor Plan 2

1 Bed, 1 Bathroom

A single room with an integrated kitchen and living room as well as a den for extra living space for the resident.

750 sq. ft.

Floor Plan 3

1 Bed, 1 Bathroom

A single room with an integrated kitchen and living space as well as a dining area to enjoy meals comfortably

675 sq. ft.

Assisted Living

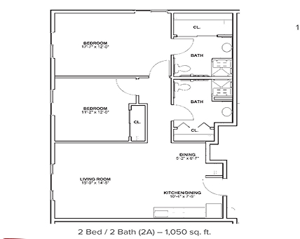
Floor Plan 4

2 Beds, 2 Bathrooms

A double room designed for residents who need assistance in their everyday activities with an integrated kitchen and living room for ease of use and convenience.

1,050 sq. ft.

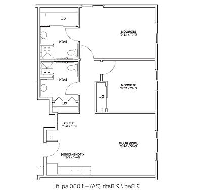
Floor Plan 5

2 Beds, 2 Bathrooms

A double room for residents who require assistance in their everyday living and a living room with an integrated kitchen and dining area to enjoy meals comfortably

1,050 sq. ft.

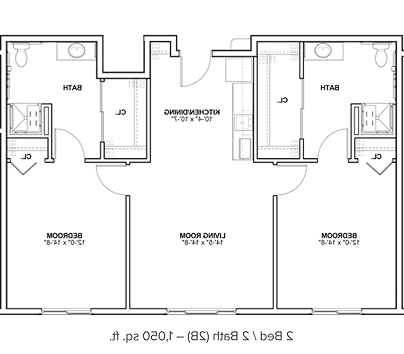
Floor Plan 6

2 Beds, 2 Bathrooms

A double room for residents who do not constantly need assistance with everyday living and have a staff member in close proximity for help if needed. Complete with integrated kitchen and living room for ease of use and convenience.

1,050 sq. ft.